FIREHOUSE CAPITAL CAMPAIGN

After a devastating fire struck the firehouse in July 2019, the Tivoli Fire Company rallied, recovered, and rebuilt.  The Company committed to pursuing a capital campaign to finally enlarge the firehouse in order to meet our current requirements and those of the decades ahead.  

MEET OUR NEW DESIGN BELOW.

Tivoli Firehouse Capital Campaign

DREAM IT.

Horizontal Red Line.png

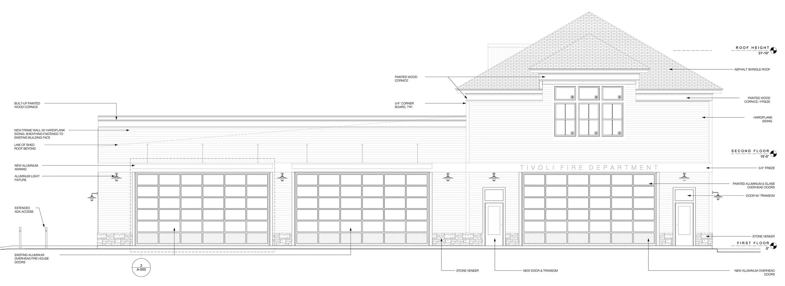
The Firehouse expansion has been designed by the esteemed local architectural firm PSA Studios. It thoughtfully conforms to the architectural character of Tivoli’s Historic District. The design expands the existing building to the west, adding two more engine bays and a second story. 

TIVOLI FIRE HOUSE SET-3.jpg

EXPAND IT.

Horizontal Red Line.png

It will add 2 additional bays, offices and command center, showers and bunkroom, a small museum space, and be able to serve as an Emergency shelter for our community which will meet Red Cross Emergency Shelter standards.

Tivoli Firehouse Capital Campaign

Support for this new expansion will be directed to the capital campaign with the Tivoli Fire Company, the non-profit organization for the fire department. Gifts from individual donors, family foundations and local and corporate business are all welcome and essential to grow this capital campaign. Together we can build upon this 100-year legacy to grow and sustain these crucial volunteer services for the Fire Department. 

BUILD it.

Horizontal Red Line.png

Together let’s build a public-private partnership to reach the goal of raising 

$4 Million Dollars

to support this Firehouse expansion

Make It

How the Expansion aids Tivoli

Firehouse Expansion Specs

TIVOLI FIRE DEPARTMENT

Tivoli Firehouse Expansion Front View

Tivoli Firehouse Capital Campaign Expansion Front View

First Floor

Second Floor

Tivoli Firehouse Capital Campaign Expansion 2nd Floor
Tivoli Firehouse Expansion Rendering

The volunteer fire department is in need of this expansion to support its fire safety response,

safety measures and mutual aid services 365 Days 

to support Tivoli and its surrounding communities.  

Support for this new expansion will be directed to the capital campaign with the Tivoli Fire Company, the non-profit organization for the fire department. Gifts from individual donors, family foundations and local and corporate business are all welcome and essential to grow this capital campaign. Together we can build upon this 100-year legacy to grow and sustain these crucial volunteer services for the Fire Department. 

DONATE HERE

TIVOLI FIREHOUSE CAPITAL CAMPAIGN COMMITTEE

Tivoli Capital Campaign Committee

Mayor Joel R. Griffith, Village of Tivoli

Marc Hildenbrand, Chief, Tivoli Fire Company

Ralph Torchia, Board of Director, Tivoli Fire Company

Foster Reed, Community Member

Denise Simon, Community Member